Project Name: Ataturk Sports Hall

Client: Bursa Metropolitan Municipality

Location & Date: Bursa, Turkiye - 2022

Project Type: Concept Project, Competition Entry

Program: Architectural Design,Sports Hall, Landscape Architecture

Bursa Ataturk Sports Hall: A Visionary Hub for Sports, Culture, and Urban Life

The Bursa Ataturk Sports Hall Project introduces a transformative architectural approach that redefines the relationship between urban space, sports culture, and public life. Designed not merely as a facility, but as a cultural and social landmark, the project acts as a catalyst for active urban living, offering an inclusive environment for athletes, residents, and visitors alike.

Urban Integration and Cultural Significance

Located in the vibrant heart of Bursa, a city rich in socio-economic and cultural heritage, the sports complex draws on the city's deep-rooted sports traditions and forward-looking urban planning vision. The design strategically positions the complex between Bursa National Garden and Resat Oyal Culture Park, integrating it into the city’s green infrastructure.

The project’s core concept is to strengthen the connection between urban life and sports, creating a space that functions beyond athletics - as a meeting point, recreational zone, and community center. The emphasis on public accessibility, interactive outdoor spaces, and civic engagement underlines its mission to support social cohesion and cultural development.

Architectural and Spatial Design

The complex is composed of two distinct masses:

  • A Primary Volume housing the multipurpose sports hall, and
  • A Secondary Volume dedicated to the indoor swimming pool.

These two are unified through a striking kinetic canopy, which not only connects the buildings but also defines a shaded public walkway known as the Sports Culture Promenade. This promenade offers a linear path for pedestrians, enriched with pop-up programs, kiosks, and café spaces, encouraging casual interaction and year-round activity.

At the heart of the project lies the Sports and Recreation Square, an open, multi-functional plaza that facilitates recreational sports, cultural events, and community gatherings. Its connection with surrounding parks enhances its landscape character, and the square serves as a stage for concerts, festivals, and local sporting events, blending indoor and outdoor activities seamlessly.

Functional Innovation and Flexibility

Inside the sports hall, architectural efficiency meets user experience. A two-level spatial strategy organizes the venue:

  • The upper level serves as a transparent foyer and administration zone, visually connecting the interior with the park landscape.
  • The lower level includes the sports arena, tribunes, and functional areas such as locker rooms, service zones, and athlete circulation paths.

The design encourages flexible use scenarios; the sports hall can open onto the plaza via foldable systems, making it suitable for both indoor and outdoor public events.

The swimming pool building follows a compact and rational layout, with a welcoming public foyer and distinct zones for athletes and staff. A transparent northern facade ensures visual dialogue with the recreation square and allows abundant natural daylight, supporting comfort and energy efficiency.

Sustainability and Technological Integration

Sustainability is a cornerstone of the design, aligning with LEED v4.1 BD+C 2018 standards. The buildings use:

  • Layered, permeable facades and roofs for daylight control and thermal comfort,
  • Energy-saving strategies to reduce HVAC demand by 25–30%,
  • Modular construction systems supporting Off-Site Manufacturing (OSM) and 4D BIM for cost, efficiency, and environmental impact control.

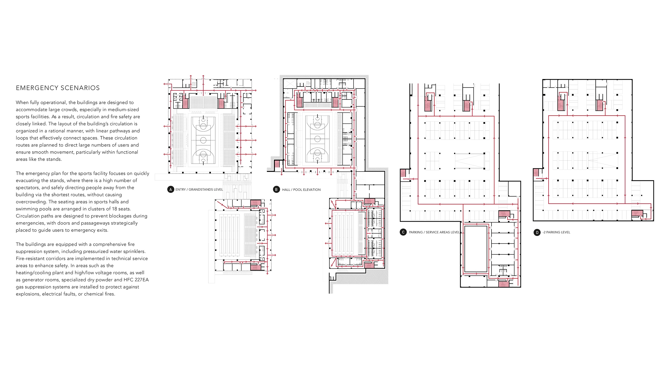
These sustainable systems, alongside advanced fire safety strategies, emergency evacuation planning, and technical service integrations, position the project as a benchmark for future urban sports infrastructure in Turkey.

Landscape and Recreational Planning

The project adopts a holistic landscape strategy, drawing from the existing vegetation and green character of the surrounding parks. It introduces features such as:

  • Basketball courts,
  • Skate parks,
  • Climbing walls,
  • Children’s play pods,

...all woven into the green structure, forming a cohesive recreational network.

The layered green integration and fluid transitions between architecture and open space enrich the user experience and strengthen the project's identity as a landscape-urban hybrid.

Construction Systems and Material Strategy

The structural system combines reinforced concrete and modular steel frames, offering both durability and adaptability. Prefabricated composite slabs and mass-customized wall systems streamline construction and enable customization.

The material palette and tectonic expressions of the building - particularly the sloped roof forms - reference Bursa’s industrial heritage, giving the project a strong visual and symbolic presence in the city’s evolving architectural narrative.