Project Name: ITU Faculty of Management Architectural Design Competition

Client: Istanbul Technical University

Location & Date: Istanbul, Turkiye - 2020

Project Type: Concept Project, Competition Entry

Program: Architectural Design, Educational Facility

ITU Faculty of Management

The proposed design for Istanbul Technical University’s Faculty of Business redefines the academic experience through a dynamic blend of interaction, sustainability, public space, and cultural continuity. Located in Besiktas, one of Istanbul’s most vibrant districts, the project is set within the ITU Macka Campus and responds to both urban context and educational needs with sensitivity and vision.

A Campus Built Around Interaction

The core design idea revolves around "interaction": the belief that communication shapes both individuals and communities. Inspired by the philosophy that meaningful encounters lead to transformative experiences, the project places human connection at the center of the architectural concept.

A central interaction node - consisting of a semi-open plaza, a café/canteen, and an amphitheater - acts as a daily gathering point for students, faculty, and visitors. This area fosters both planned and spontaneous meetings, transforming circulation into collaboration.

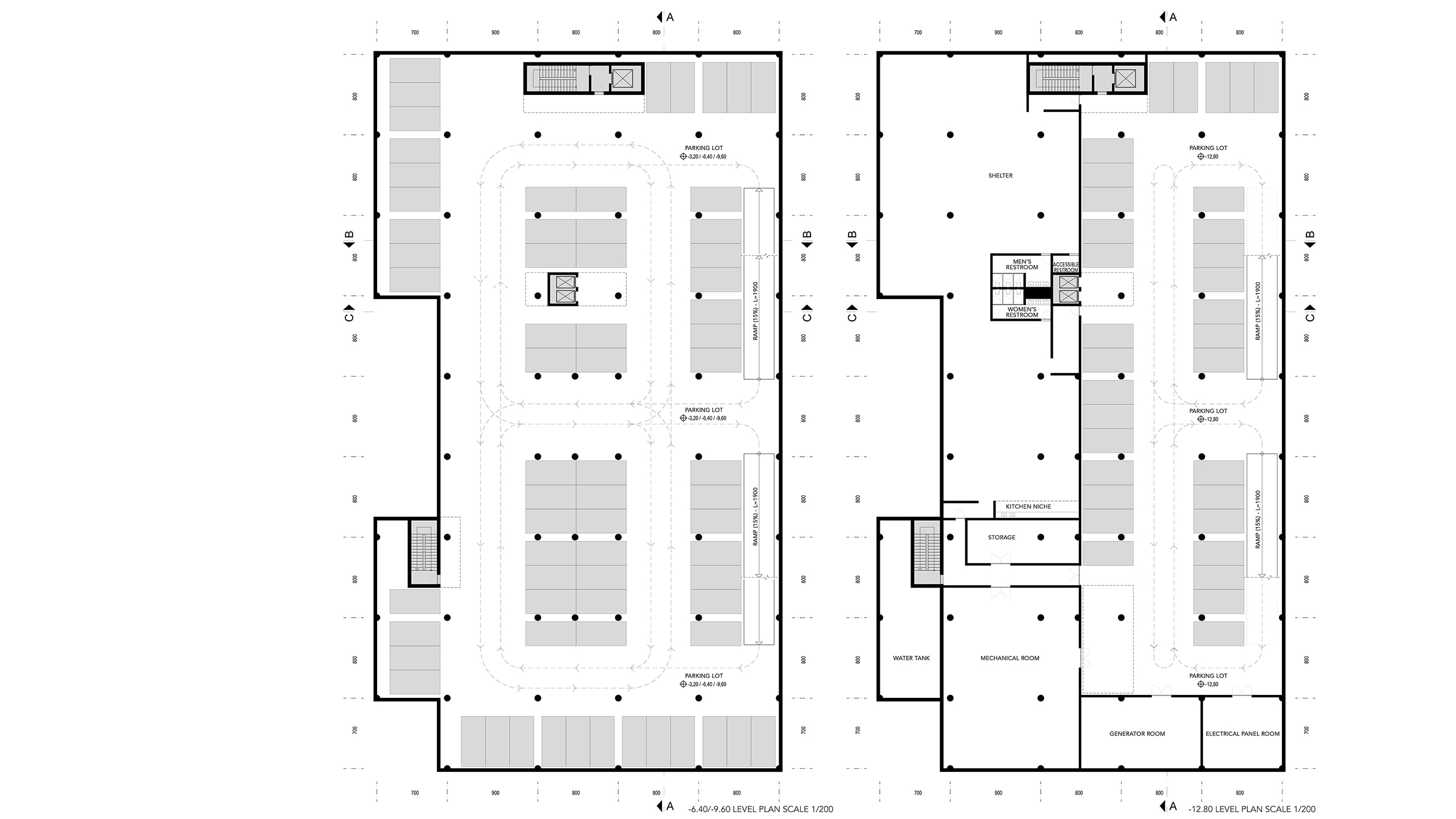
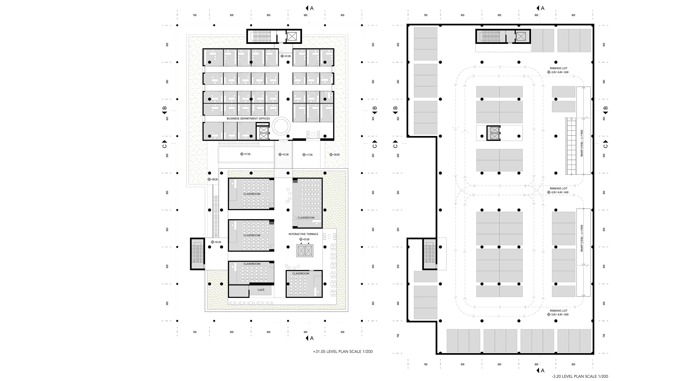
Multi-Level Spatial Organization

The design utilizes the site’s natural slope to create three interconnected ground levels:

  • +52.05 Level (1st Ground Floor): Serves as the main entrance and hosts key interaction zones with direct access to social spaces like the café.
  • +56.10 Level (2nd Ground Floor): Features a conference hall that connects indoor learning with the outdoor campus life. It is designed to promote interaction between students and external guests.
  • +60.60 Level (3rd Ground Floor): Aligns with a major pedestrian axis and includes student clubs, amphitheater, and additional social spaces - reinforcing the theme of campus publicness.

A large canopy unifies all levels and creates open, semi-open, and closed spaces that function together in all seasons. The design encourages visibility, openness, and a sense of "being together" across all floors - from the courtyard to the terraces.

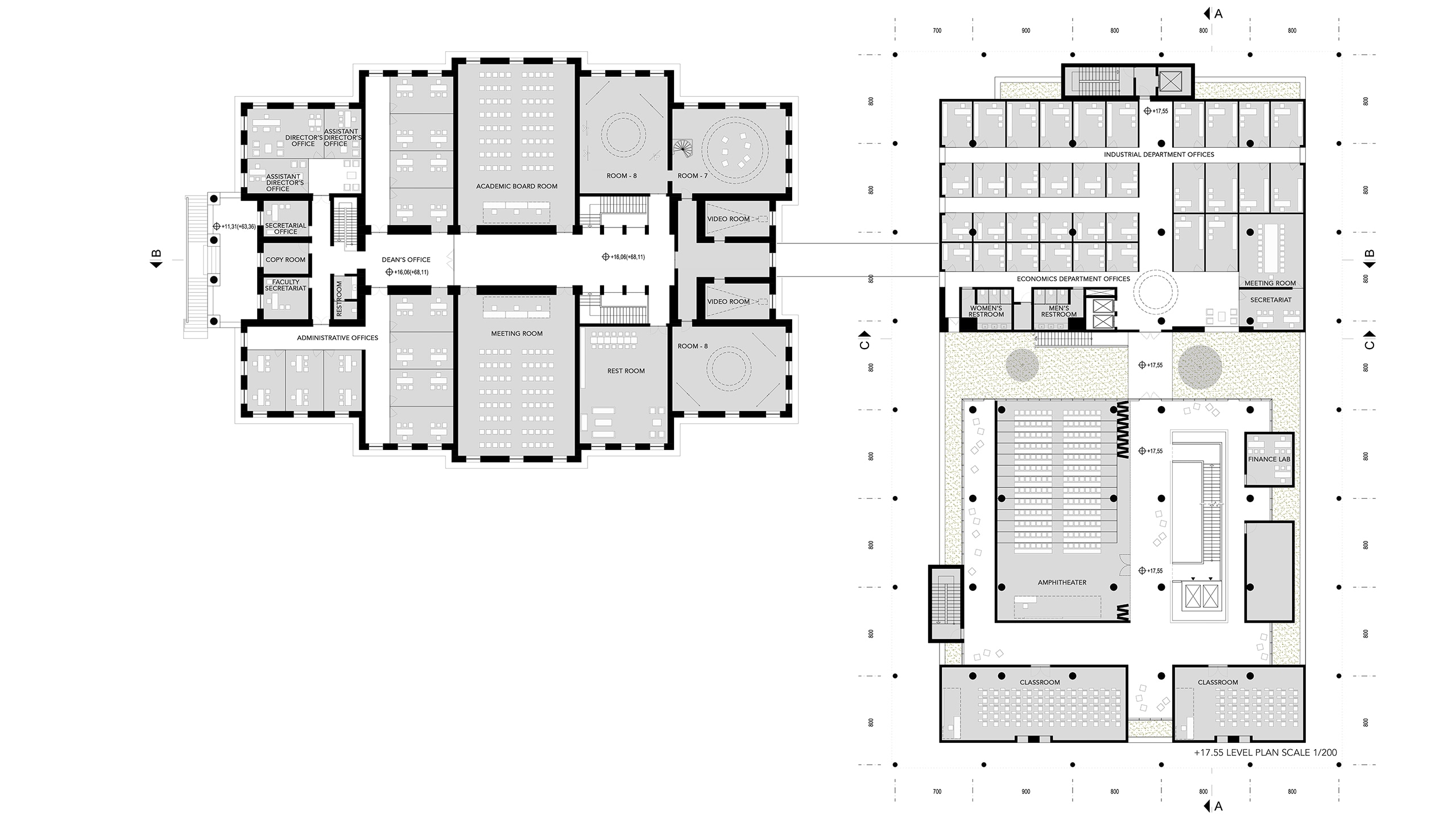
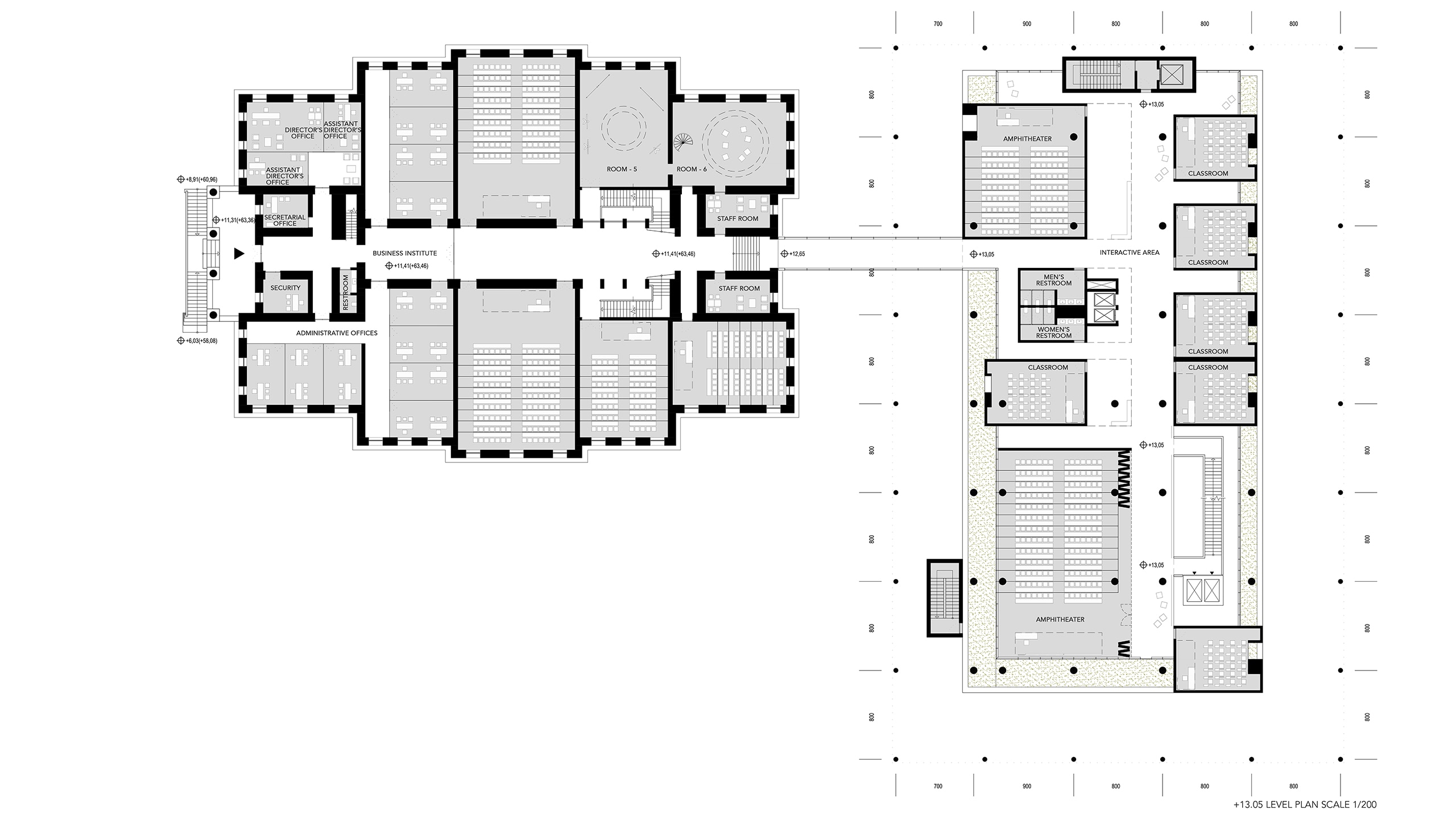
Educational and Administrative Integration

While learning and office spaces are placed under the same roof, they are functionally separated for privacy and performance. Bridging elements link the blocks, offering controlled visual and physical connections. This spatial layout enhances faculty-student interaction while respecting academic workflows.

Faculty offices are distributed across levels in a way that encourages vertical communication, making the daily experience more connected and engaging.

Reviving the Karakolhane Building

An essential part of the project is the thoughtful integration of the historic Karakolhane Building. It now houses the Dean's Office and Institute of Business administration units, preserving its historical importance while giving it a new life.

The previously existing bridge connection has been redesigned, strengthening the dialogue between old and new. Additionally, the building’s basement level has been transformed into a public museum and exhibition space - honoring its symbolic role and opening it partially to the city.

Sustainable and Contextual Landscape Design

The landscape strategy is driven by ecological sensitivity and urban continuity. Key goals include:

  • Preservation of existing trees within the site
  • Introduction of low-maintenance, climate-appropriate plant species
  • Use of rainwater-filtering and air-purifying plants that support biodiversity

A diverse mix of species such as Catalpa bignonioides, Magnolia grandiflora, and Gleditsia triacanthos offers seasonal richness and environmental resilience. Low shrubs and grasses like Carex oshimensis, Miscanthus sinensis, and Stipa tenuissima are used in terraces, courtyards, and building edges to soften urban boundaries and enhance user experience.

The planting strategy is designed not only for aesthetics but to support ecological cycles, air quality, and stormwater management. In rooftop gardens, edible plants are introduced to encourage human-nature interaction and sustainable living.

Urban Integration and Environmental Ethic

The project connects seamlessly with Macka Democracy Park to the west and opens up to Suleyman Seba Street through pedestrian pathways, allowing access from every direction. The surrounding urban texture, public life, and green infrastructure are all considered in the massing and site planning.

The combination of functional clarity, cultural respect, and green infrastructure creates a holistic academic environment: one that is open to both the city and the future.