Project Name: Izmir City Council and Democracy Monument

Client: Izmir Metropolitan Municipality

Location & Date: Izmir, Turkiye - 2023

Project Type: Concept Project, Competition Entry

Program: Architectural Design, Landscape Architecture, Monumental Design, Governmental Facility, City Council, Gallery

Izmir City Council: A Monument of Participatory Democracy

The Izmir City Council project reimagines public architecture as a powerful expression of democratic values, urban memory, and civic participation. Designed for the site of the former Izmir Metropolitan Municipality service building, this conceptual proposal goes beyond a functional government facility to act as a cultural landmark and catalyst for urban dialogue.

At the core of the project lies the belief that participatory democracy is the cornerstone of a truly empowered society - an idea deeply rooted in the project’s spatial, architectural, and symbolic elements. The building is not simply a civic office, but a living structure that reflects the collective memory, independence, and pluralistic ideals of Izmir and its residents.

Urban Integration and Civic Connectivity

The project site is positioned at the heart of Konak Square, one of Izmir’s most historically and culturally charged urban spaces. Framing the iconic Izmir Clock Tower, the design engages in an intensive urban dialogue that extends the square southward to Konak Bridge and connects it seamlessly to the coastline. This continuity is enabled by extending the existing underpass beneath Mustafa Kemal Coastal Boulevard, allowing for uninterrupted public access between the square and the waterfront.

Rather than isolating itself from the urban context, the structure is integrated through material continuity, landscape harmony, and the careful preservation of existing architectural textures. The building mass responds to the urban perimeter - the sea, the square, and transitional corridors - by aligning with Mediterranean and Aegean sensibilities, both in scale and in landscape.

A Civic Monument: Transparency, Memory, and Identity

The architectural identity of the building positions it as a monumental yet accessible form in Izmir's skyline. Its distinctive mass is crafted with permeable facades to the east, west, and north, and a solid southern wall that faces Konak Square. This south-facing elevation functions as a kinetic urban surface, designed for video mapping and public media projections, transforming the building into a dynamic canvas for symbolic and civic expression.

This kinetic façade is not merely aesthetic; it serves as a platform for broadcasting the values of transparency, democracy, and inclusivity. Through modern technologies and symbolic references to Izmir’s democratic history, the structure becomes a living monument - a civic landmark deeply intertwined with the public imagination.

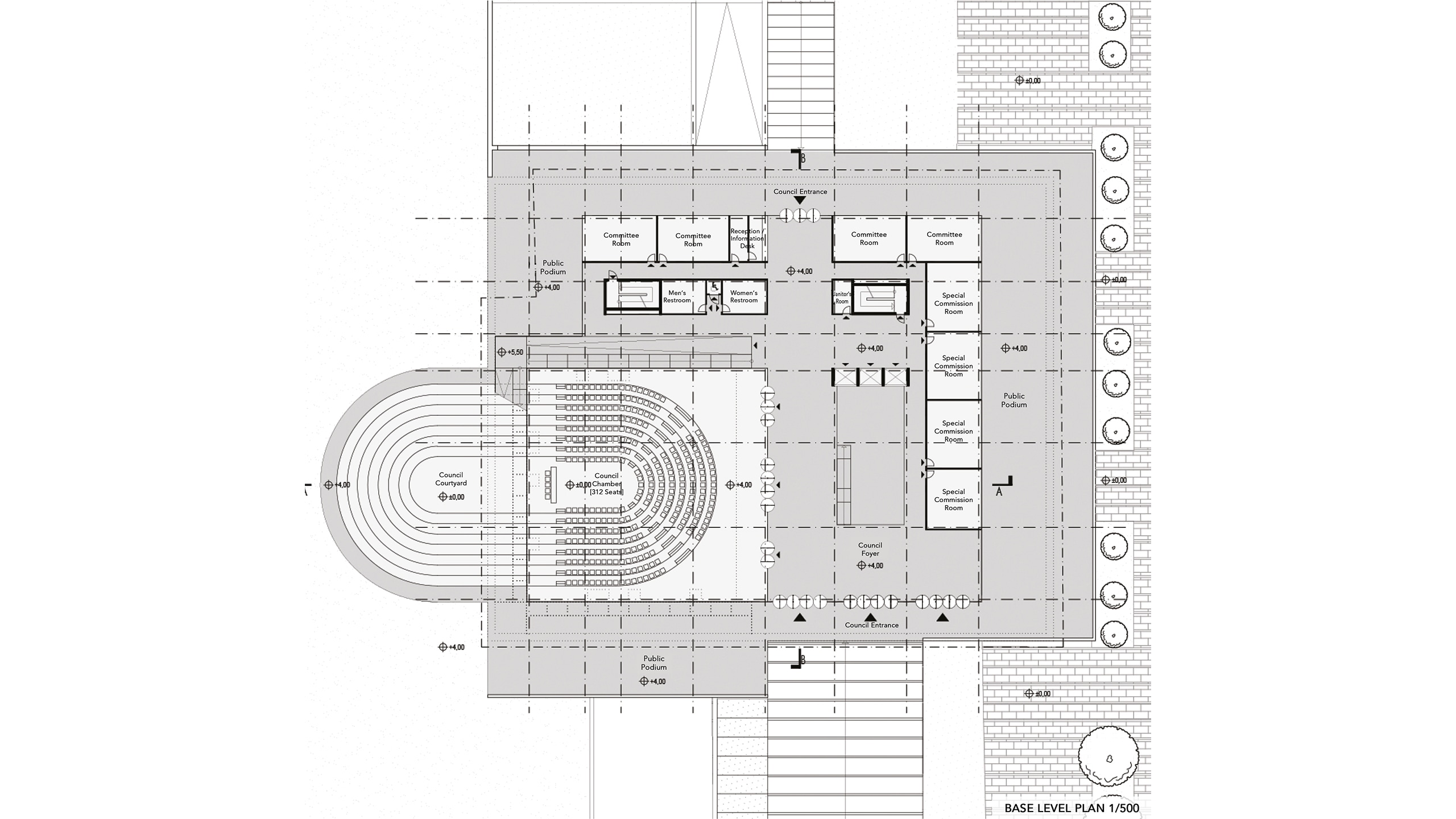
Architectural Layout: An Open System of Governance

The building’s internal organization is centered around the City Council Chamber, reflecting the fundamental principle that governance must remain visibly and spatially connected to the people. This chamber is directly accessible from the public square and is surrounded by key functions such as the mayor’s office, a city library, multi-purpose halls, exhibition spaces, and gathering zones.

A defining feature is the “Democracy Path”: a ramp spiraling around the council chamber over three levels. This architectural promenade offers continuous visual and symbolic interaction between the users, the urban landscape, and the democratic processes housed within. The path culminates in a public terrace at +17.50 elevation, offering a panoramic view of Izmir - symbolizing an open, elevated perspective on civic life.

Importantly, the presidency level is placed within this ramped sequence, not above it, signifying that leadership does not rise above or retreat from public participation. This spatial metaphor reinforces the concept of governance grounded in transparency and inclusion.

Symbolism Through Form and Technology

The building envelope is a key narrative element, articulated with a perforated surface that encodes significant milestones from Izmir’s democratic evolution. Through a parametric design language, the skin tells a story of struggle, growth, and collective identity - transforming architecture into a repository of memory.

Moreover, the multi-functional façade encourages interaction between citizens and the institution by broadcasting messages, visuals, and events that reflect civic life. This interface between technology and space reinforces the building’s role as a social and visual mediator in the city fabric.

A Contemporary Agora for a Democratic Society

More than a government facility, the Izmir City Council is envisioned as a modern agora: a place of gathering, debate, representation, and civic empowerment. It addresses not just administrative needs but positions itself as an inclusive space where the voices of all citizens resonate.

In essence, the project redefines the concept of a city hall by intertwining architecture, urban design, and democratic values into a cohesive, meaningful structure. It stands as a symbol of modern, transparent, and inclusive governance rooted in Izmir’s unique cultural and historical landscape.