Project Name: Past - Present - Possible

Client: Yousef M

Location & Date: Dubai, UAE 2025

Project Type: Concept Design

Program: Architectural Design, Landscape Architecture,Interior Design

Past - Present - Possible

Reimagining Emirati Vernacular Architecture in a Sustainable Contemporary Home

In the arid landscapes of the UAE, architecture has long reflected a deep understanding of both environment and culture. This modern residential project draws from the richness of traditional Emirati vernacular to create a home that is not only climatically responsive but also culturally rooted and environmentally sustainable. The design evolves the region’s architectural language by integrating advanced technologies with time-tested spatial strategies.

Cultural Heritage and Spatial Identity

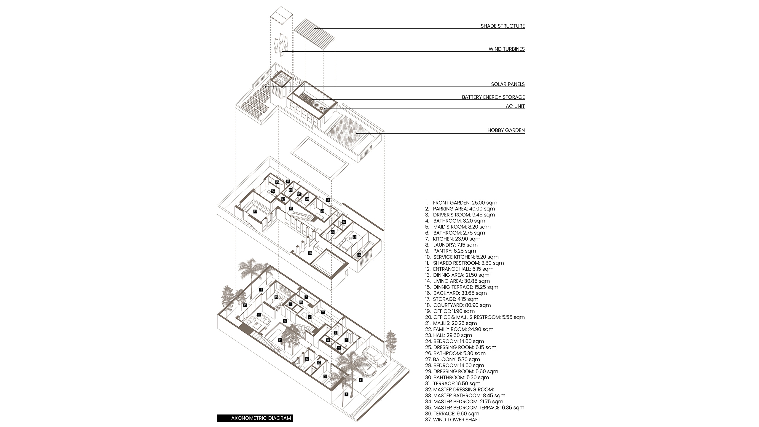
At the core of this design lies a deep respect for Emirati cultural values, especially privacy, hospitality, and modesty. Drawing inspiration from historic townscapes - where narrow alleys channeled breezes and shaded courtyards formed social hubs - the project reorganizes spatial zones in line with traditional principles. Public, semi-public, and private areas are carefully layered: the majlis and office face the street, bridging community engagement and family privacy, while family spaces are set deeper into the plot.

The central courtyard (hosh), a hallmark of traditional Emirati homes, becomes the beating heart of the design. Surrounded by living, dining, and working areas, this green space offers both visual and climatic relief - cooling the air, promoting ventilation, and encouraging family interaction. The liwan, a traditional arcaded gallery, is reinterpreted with openable glass façades and a protective balustrade, seamlessly merging indoor comfort with outdoor openness.

Modern Adaptation of Traditional Features

Several architectural features have been modernized while retaining their historical essence. The barjeel (wind tower) is reimagined using cutting-edge technologies. It is divided into four directional channels, each fitted with spiral wind turbines capable of generating energy even at low wind speeds. This structure not only ventilates the home naturally but also produces electricity stored in rooftop batteries.

Other elements, such as mashrabiya-inspired façade grids, provide privacy while enabling cross-ventilation and daylight penetration. These contemporary screens also serve ecological functions - inviting birds to nest and supporting biodiversity.

Sustainability as Design Ethos

This project doesn’t treat sustainability as an afterthought but weaves it into every architectural decision. Passive cooling plays a central role, beginning underground. Air passes through subsurface pipes buried 3-4 meters deep, pre-cooled by the earth’s stable temperature before entering the air conditioning system - dramatically reducing energy demand.

The green roof system, topped with a 28 m² solar panel array, provides insulation, reflects heat, and supports native vegetation. Above the master bedroom, a hobby garden adds a layer of thermal comfort while offering a tranquil retreat for relaxation and social connection.

Combined with active carbon air filters, mesh barriers in the wind tower, and rooftop energy storage, the design aligns with low-carbon goals and ecological sensitivity. These features work in harmony to produce a comfortable, healthy indoor climate, even under the intense heat of the UAE.

Site Planning and Functional Efficiency

The layout of the villa demonstrates a clear hierarchy of access, use, and movement. Setbacks -1.5 m to the left, 2 m to the right, 3 m at the rear- are calculated to enhance privacy, acoustic comfort, and greenery, especially between adjacent villas. A discreet service corridor at the rear allows seamless movement of staff and services without disturbing family life.

Interior zoning reflects thoughtful planning. Service areas are centrally located for functional ease, while the living and dining areas open to the serene rear garden. The home evolves from a three-bedroom to a five-bedroom villa, expanding vertically while preserving and enhancing the courtyard. This strategic verticality increases capacity without sacrificing the spatial coherence of the original layout.

A Sustainable Vision Grounded in Culture

Ultimately, this residence represents a harmonious fusion of traditional wisdom and contemporary innovation. Every element -from the placement of the majlis to the airflow management in the wind tower- tells a story of sensitive adaptation to place, culture, and climate. Rather than mimic the past, the design reinterprets it with purpose, offering a meaningful blueprint for future architecture in the Gulf region.