Project Name: Physiotheraphy and Hydrotheraphy Center

Client: Bodrum Health Foundation

Location & Date: Mugla, Turkiye - 2024

Project Type: Concept Project, Competition Entry

Program: Architectural Design, Landscape Architecture, Healthcare Facility, Hospital, Therapy and Rehabilitation Spaces

Physiotherapy and Hydrotherapy Center

The Physiotherapy and Hydrotherapy Center redefines the standards of therapeutic architecture by integrating user-focused design, sustainable technologies, and regional architectural identity.

This architectural concept emphasizes not only medical functionality but also the emotional and physical well-being of users through a carefully curated spatial experience. The design merges aesthetic sensitivity, ergonomic planning, and functional zoning to create a healing environment that supports recovery, comfort, and long-term usability.

Functional Spatial Organization for a Healing Journey

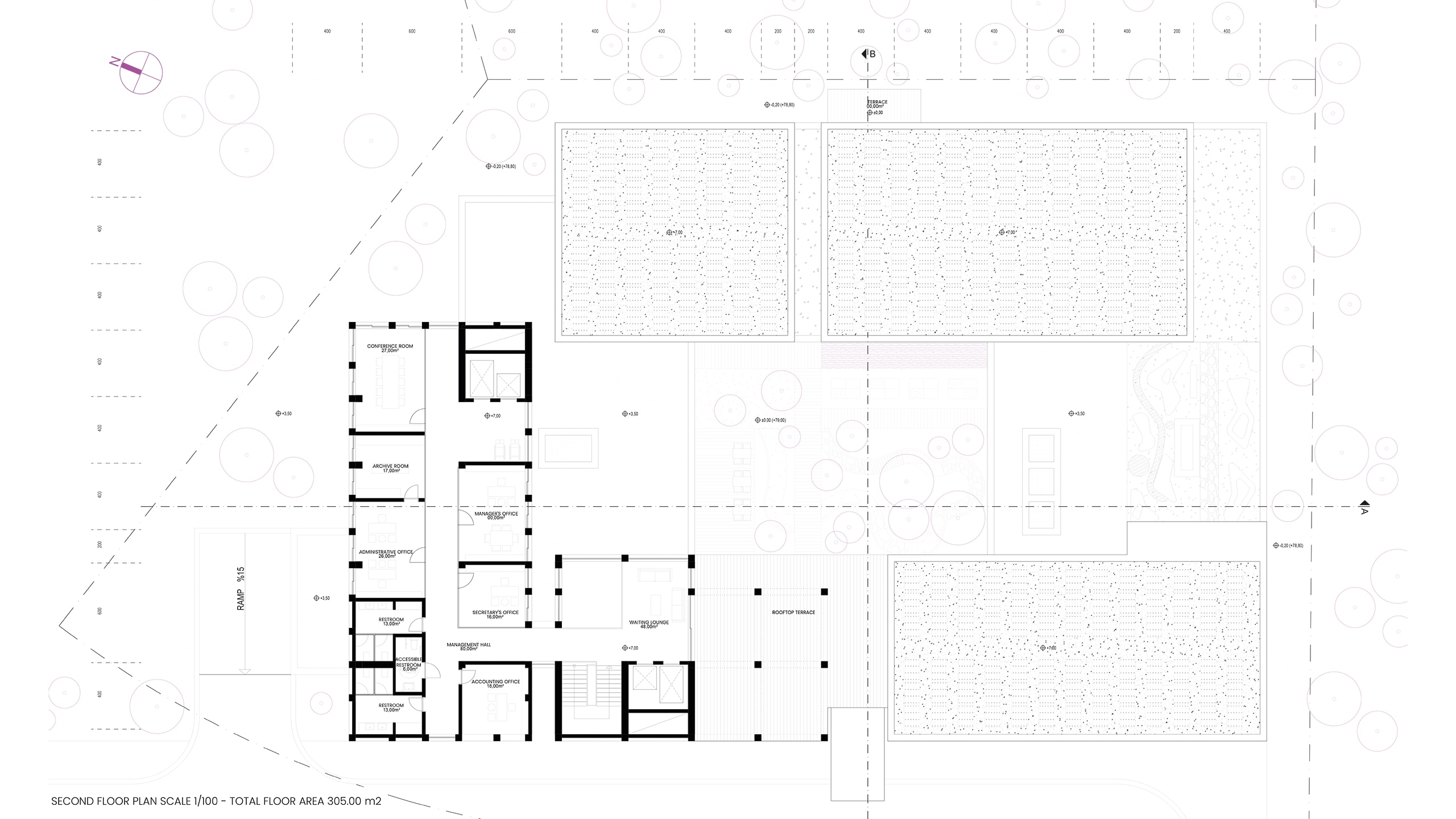
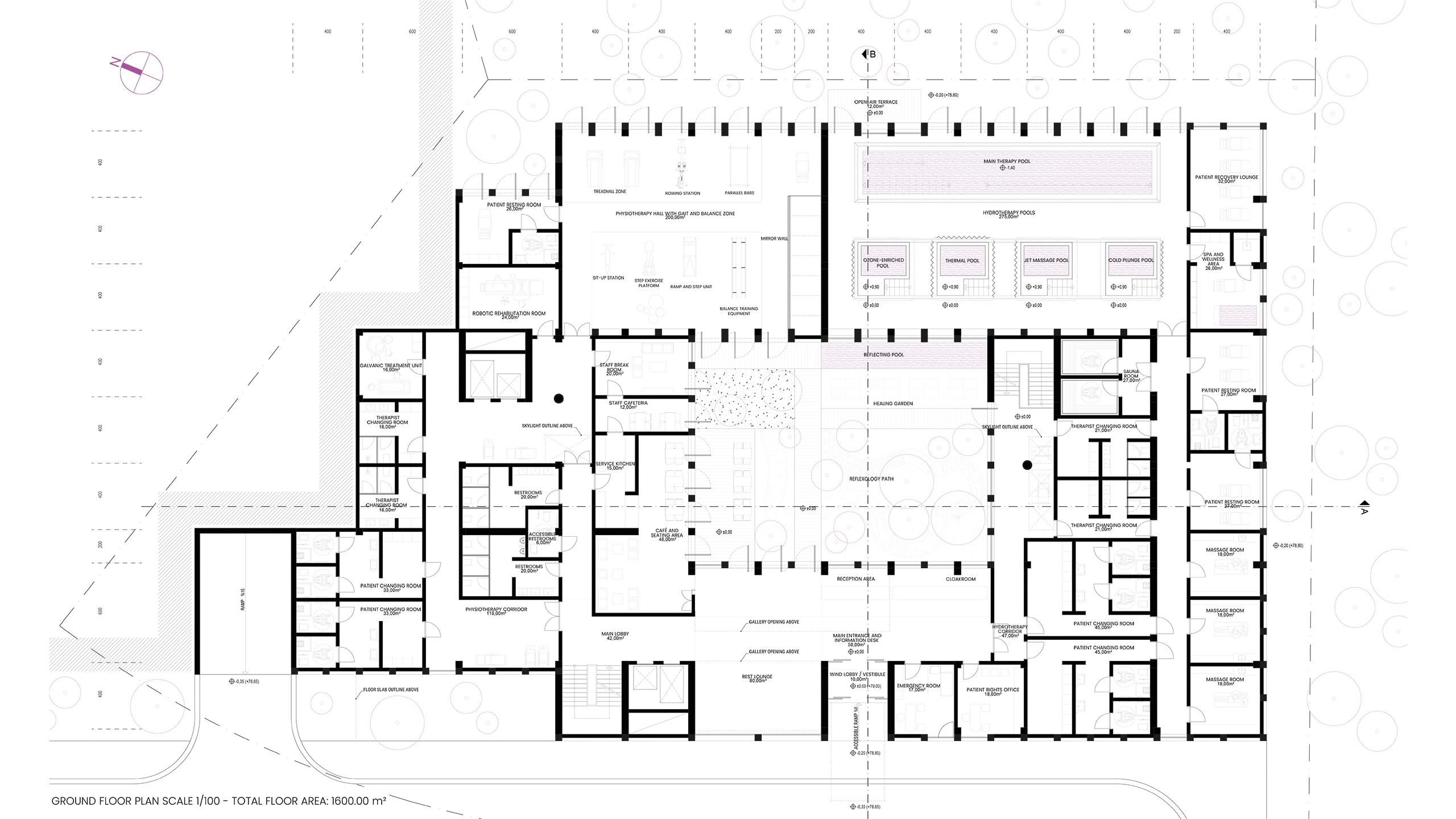
At the core of the project is a layered circulation diagram, organizing the building across four levels: a basement, ground floor, first, and second floors. The ground floor acts as a central hub, channeling users from a shared entrance and waiting area into the courtyard, and then to various treatment departments such as physiotherapy, hydrotherapy, and outpatient clinics. Carefully positioned preparation rooms ensure hygienic flow and direct access to therapy areas.

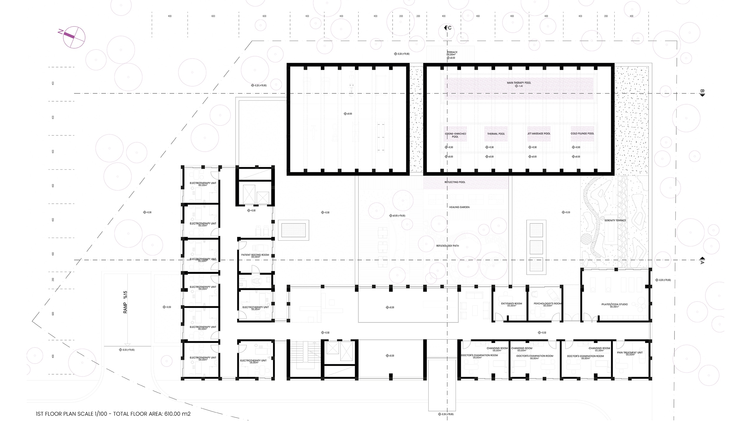
The first floor is reserved for more private medical services such as diagnosis, examination, and personalized therapy rooms, offering individualized care in a tranquil environment. The second floor, occupying only part of the building’s upper level, is allocated to administrative and management functions, ensuring smooth institutional operation without compromising patient-focused zones.

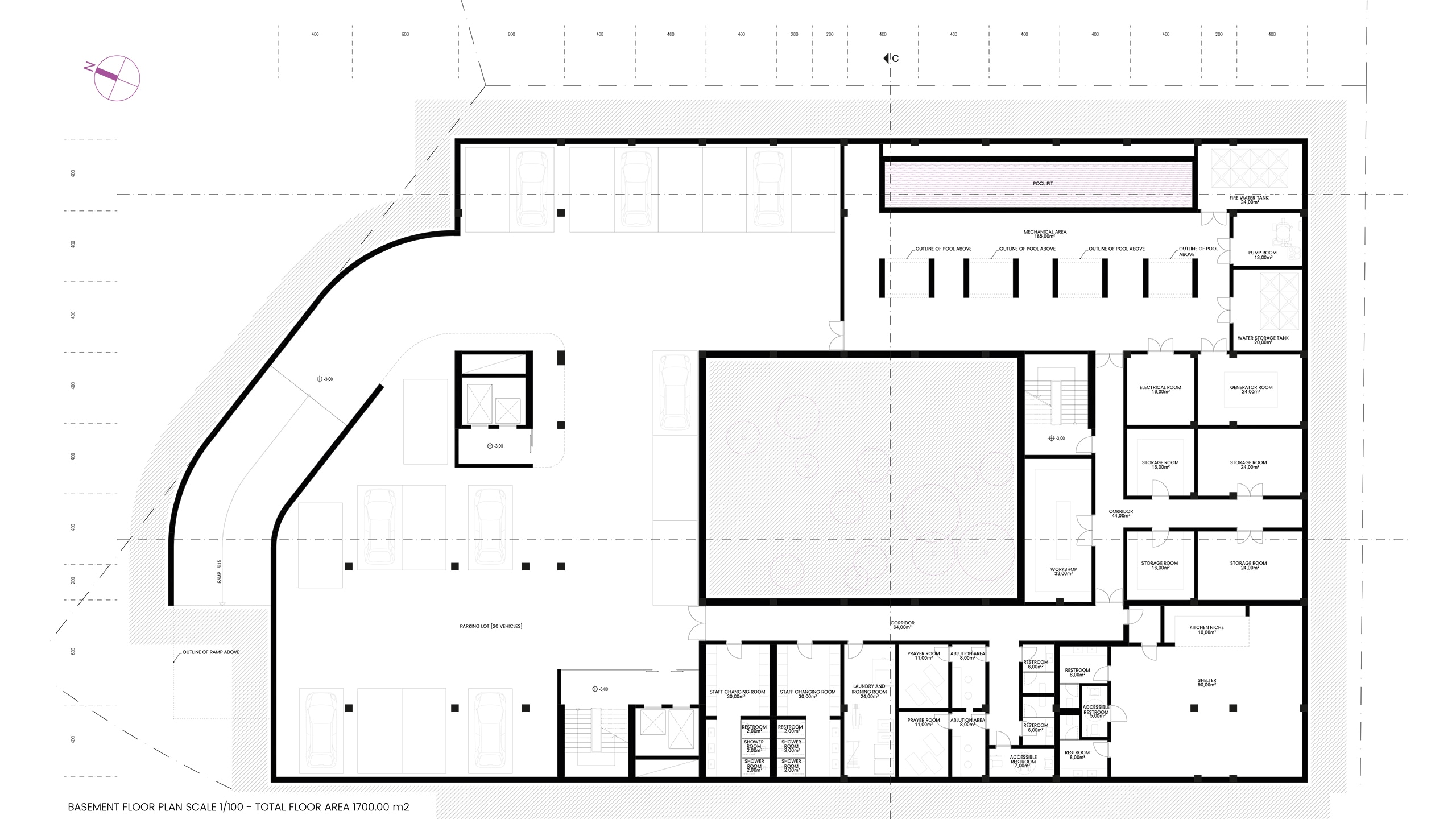
In the basement, technical service units, staff preparation areas, and an indoor parking facility are located, enabling the uninterrupted flow of operational and logistical support while maintaining an undisturbed user experience.

Spatial Integration with Natural Elements

The building’s design fosters an interactive relationship between interior and exterior spaces, centered around a courtyard-garden that enhances user experience through natural light, air flow, and visual openness. This spatial strategy is further supported by the inclusion of healing and therapeutic landscape elements:

  • The Reflexology Path, located within the courtyard, features a surface paved with stones of varying sizes. As users walk barefoot over the path, it stimulates pressure points, providing natural therapy, physical relaxation, and energy balance.
  • Adjacent to the yoga and Pilates therapy area, the Tranquility Terrace offers a minimalist, nature-inspired environment. Designed for moments of mental and physical rest, this terrace supports muscle relaxation and mindful focus between therapy sessions.
  • The vegetable garden and planting area serve as a healing board, allowing users to engage with nature. Whether by gardening or simply being present in this green space, users experience emotional relief, stress reduction, and a deepened connection to the holistic healing process.

These features transform the center into more than just a medical facility, it becomes a therapeutic ecosystem.

Architectural Language Rooted in Local Identity

Drawing inspiration from the Aegean region’s architectural heritage, the project reflects a modern interpretation of local archetypes. The use of mass proportions, voids, and transparent surfaces echoes the visual rhythm of vernacular architecture while meeting contemporary needs. The result is a building that respects its geographical and cultural context, blending harmoniously into the environment.

Natural light, open-air transitions, and the fluidity between spaces not only soften the boundaries between interior and exterior but also enhance the psychological comfort of users. This architectural language develops a distinctive identity while maintaining relevance to the local climate and lifestyle.

Sustainable and Smart Design Solutions

A key component of the design is its commitment to energy efficiency and sustainability. The building features a photovoltaic (PV) solar energy system installed on the rooftop terrace, designed to generate a significant portion of the center’s daily electricity needs. This approach supports energy independence while offering long-term economic benefits and a reduced environmental footprint.

The project also incorporates a rainwater harvesting system, designed to collect and reuse rainwater to minimize water consumption and promote sustainable resource management. These systems contribute to reducing the building’s ecological footprint, aligning the structure with green building standards.

The Bodrum Health Foundation Physiotherapy and Hydrotherapy Center stands as a model of integrative healthcare architecture, where functional planning, sustainable solutions, and cultural sensitivity converge. From therapeutic efficiency to environmental consciousness, the design exemplifies how architectural thinking can profoundly impact healthcare delivery and user experience.