Project Name: Uzundere Cemevi Socio-Cultural Center National Architectural Idea Project Competition

Client: Karabaglar Municipality, Turkiye

Location & Date: Karabaglar, Izmir, Turkiye - 2018

Project Type: Competition Project - 1st Mention Award

Program: Socio-Cultural Center, Place of Worship

Uzundere Cemevi Socio-Cultural Center

A Contemporary Interpretation of Alevism in Architecture

Rooted in principles of unity with nature, community, and self-discovery, Alevism emphasizes harmony between humans and their environment. In designing the Uzundere Cemevi Sociocultural Center, our goal was to translate these values into a spatial experience: one that integrates the cultural philosophy of Alevism with the realities of urban transformation and natural context.

A Place of Gathering Beyond Worship

Located in the Uzundere neighborhood, a site currently undergoing significant urban redevelopment, the Cemevi is envisioned not just as a house of worship, but as a community-centered space. It serves as a social, cultural, and spiritual hub where residents can gather, learn, and connect - mirroring Alevism’s holistic worldview.

The project redefines the Cemevi typology by embedding it within its landscape, extending the reach of the adjacent planned park into the heart of the site. The design eliminates existing vehicular barriers and transforms the surrounding road infrastructure to create a seamless green corridor that unites park, woodland, and built environment.

Designing with the Land, Not Over It

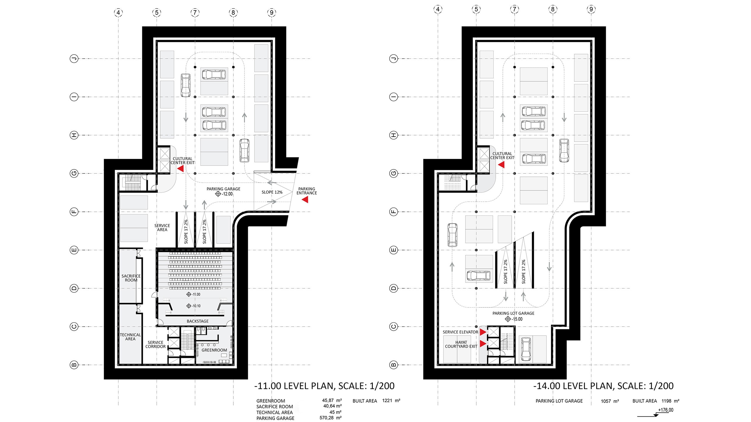
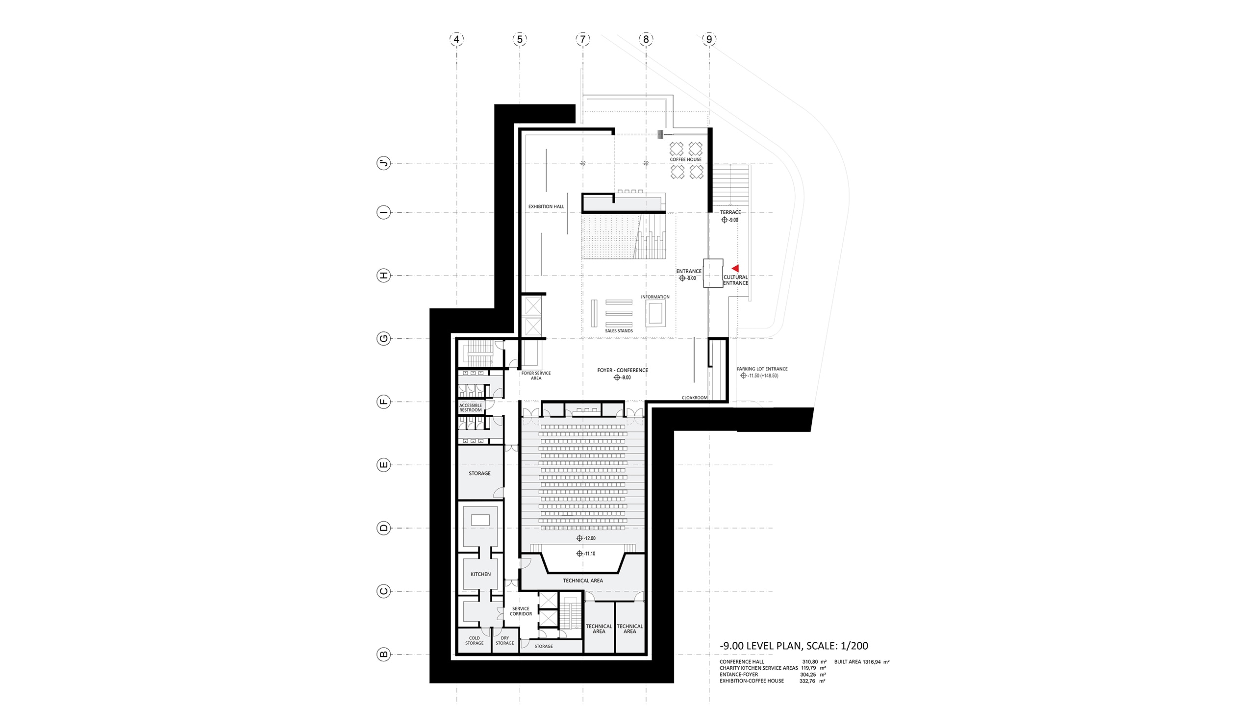
The terrain features a dramatic 16-meter level difference, which became a core driver of the architectural concept. Rather than flattening the site, the design embraces its natural slope, creating a cascading series of courtyards and terraces across four primary elevation levels. This topography-sensitive approach ensures visual and physical continuity between indoor and outdoor spaces, fostering a site-specific architecture that evolves organically from the land.

Each built form is intentionally scaled to the human body, fostering a sense of inclusion and respect. The architecture does not compete with nature but frames it: maintaining a clear hierarchy where natural elements take precedence.

A Spatial Narrative Through Courtyards

At the center of the design are three interlinked courtyards, each with its own symbolic and functional role:

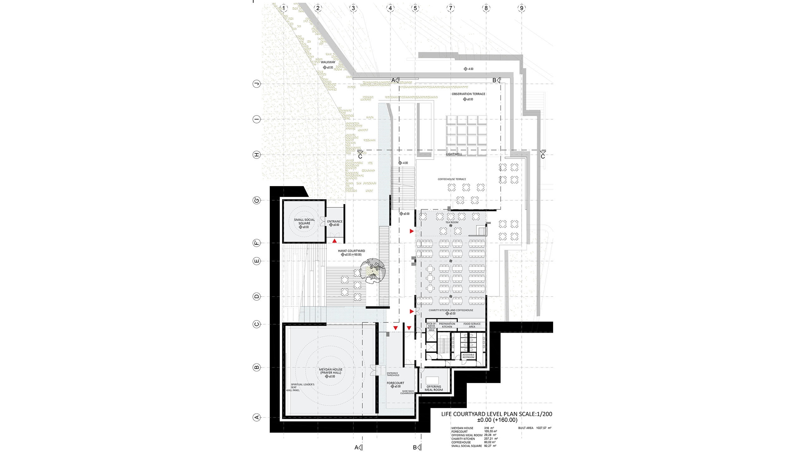
  • Hayat Courtyard (Courtyard of Life): Serving as the heart of daily activity, this space connects directly to the park and houses key communal functions such as the soup kitchen, tea house, ceremonial Meydan House, and gathering areas. A pomegranate tree - the Tree of Life in Alevi tradition - stands at its center, anchoring the courtyard in both symbolism and function.
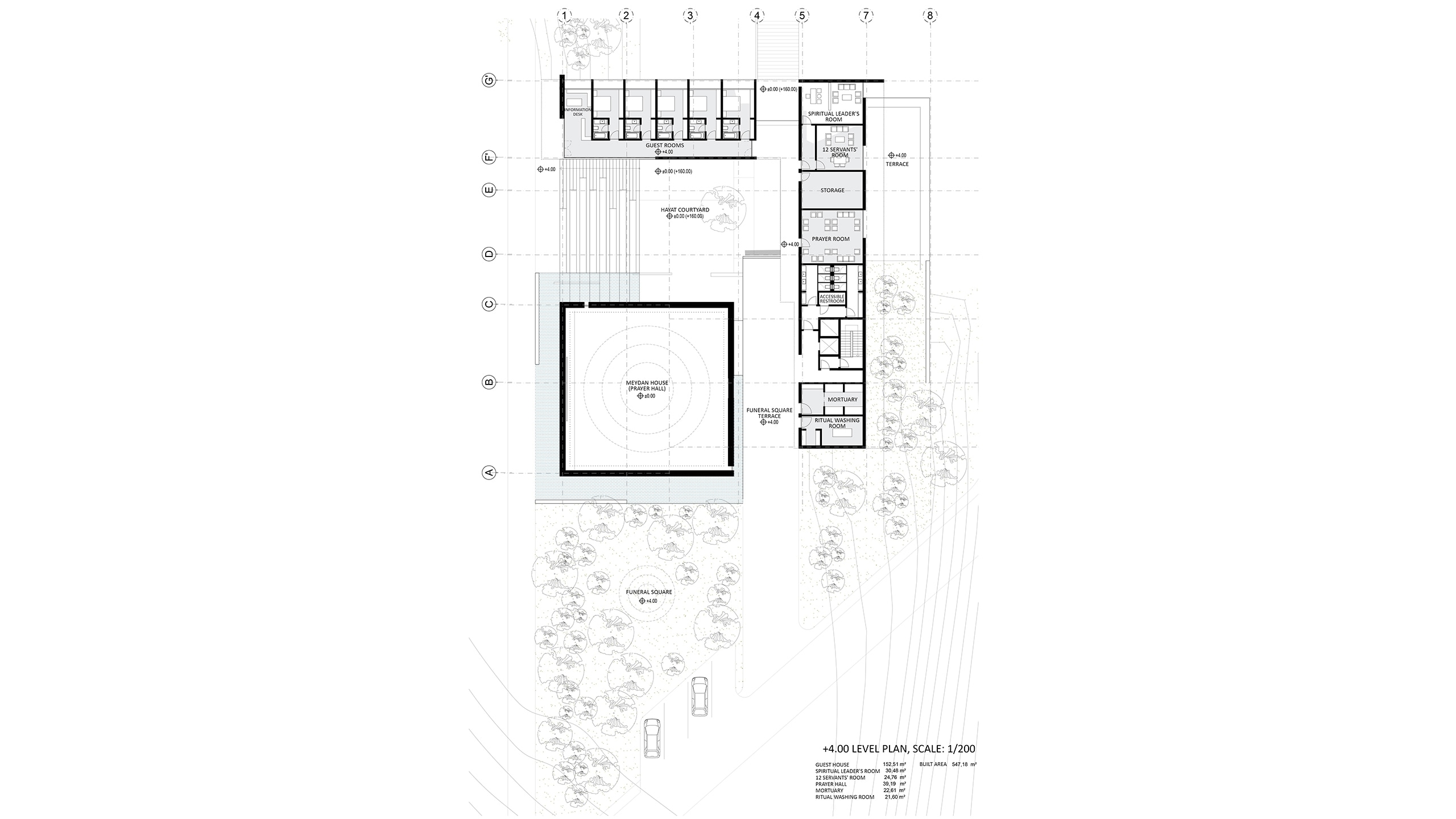
  • Funeral Courtyard: Tucked into the wooded southern edge, this quiet zone is designed for reflection and remembrance. Visual continuity with the Hayat Courtyard is maintained through a shared terrace, ensuring fluid movement and emotional cohesion between spaces.
  • Cultural Courtyard: Located at the lowest elevation, this area houses educational and administrative functions, including classrooms, workshops, and a conference hall. A stepped amphitheater links this space to the gallery and upper levels, reinforcing the connection between knowledge and experience: a core Alevi belief.

Each courtyard is defined not only by built functions but by their connection to nature, water, and light - core elements in Alevi philosophy.

Circulation Rooted in Symbolism

Circulation within the site is guided by a continuous water element that flows from north to south, echoing Alevism’s view of water as a symbol of life, movement, and spiritual renewal. This axis ties together all courtyards, creating an intuitive path for pedestrians and enabling universal accessibility at every level.

Pathways and terraces are designed for informal use, encouraging people to sit, talk, and engage with the space and each other. Ritual spaces like the Meydan House are intentionally modest, with sculptural skylights bringing in natural light - celebrating the Alevi belief that all creation originates from light.

Building Community Through Function

The functional distribution within the complex is designed to create a vibrant, active environment that supports both ritual and everyday life:

  • The Funeral Courtyard includes a prayer room, terrace, and guest accommodations: providing a respectful setting for farewells.
  • Around the Hayat Courtyard, functions such as the tea house, ceremonial hall, lokma room, and conversation spaces promote shared experiences and collective memory.
  • The Cultural Wing includes a café, gallery, workshops, and a conference hall: extending the Cemevi's role into education and cultural engagement.

Together, these spaces reflect Alevism’s emphasis on humanism, learning, and community.

A Place Rooted in Nature and Culture

The Uzundere Cemevi and Sociocultural Center is more than a building - it is a living space that honors belief, community, and ecology. Through its layered courtyards, natural materials, integrated landscape, and symbolic elements, it becomes a place where architecture supports spiritual introspection, social connection, and a harmonious relationship with the land.