Project Name: Villa 22, Al Shati Beach, Abu Dhabi

Client: Mr. Hamed

Location & Date: Al Shati Beach, Abu Dhabi, UAE - 2025

Project Type: Concept Design

Program: Architectural Design, Interior Design, Landscape Design

Abu Dhabi Villa 22: A Contemporary Oasis in Al Shati Beach

Located in the prestigious Al Shati Beach area of Abu Dhabi, Villa 22 is a unique architectural and landscaping project that blends modern aesthetics with cultural sensitivity. Nestled along the waterfront and offering serene views of a nearby island, the project site features a private beach, a canal-front setting, and a landscape designed to balance privacy, functionality, and luxury in the heart of the UAE.

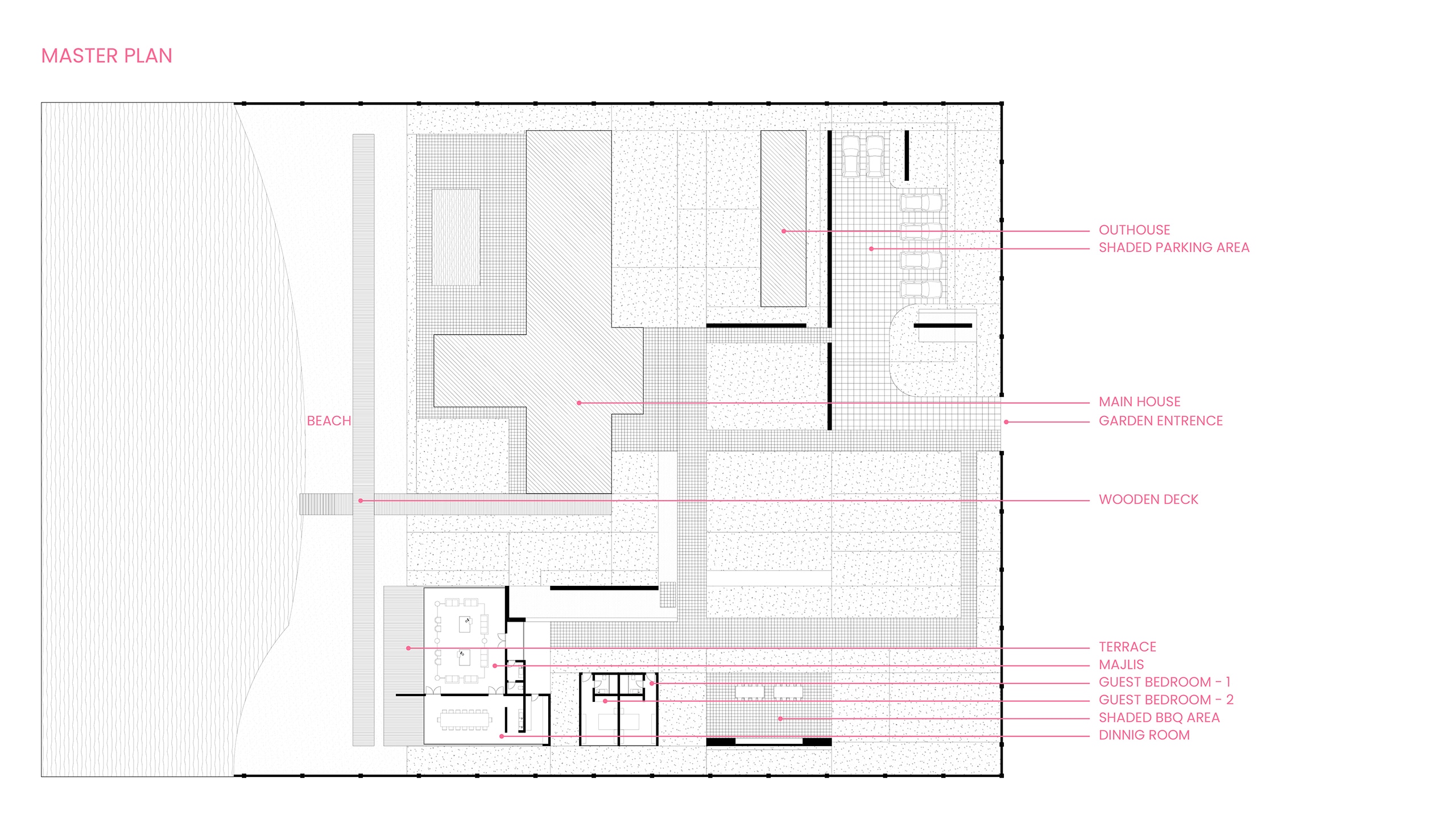
Site and Structure Transformation

Spanning a 1,200 square meter plot, the site initially hosted a 400-square-meter unused structure. Instead of demolishing the existing building, it was renovated and repurposed as the core of a comprehensive residential complex. This transformation not only preserved structural value but also added depth to the architectural story of the project.

The site now features several distinct yet harmonized spaces:

  • A Main House (primary living area for the family)
  • A Service Pavilion (a service structure with areas for cooking and maid services)
  • A traditional Majlis (guest gathering area)
  • An independent Guesthouse with hotel-style accommodations

Privacy and Spatial Organization

Privacy was a cornerstone of the site’s design. Upon entry, visitors encounter a shaded parking area, a crucial feature given the region’s hot climate. Beyond this, a carefully designed system of privacy walls and integrated landscape elements conceals the main living areas. These natural and architectural screens create a clear separation between public and private zones, ensuring tranquility and seclusion for residents.

Behind the parking area, the renovated 400 sqm structure now serves as the family’s main living quarters. The design incorporates framed façades and arcades, creating a distinctive architectural identity while maintaining harmony with the surrounding landscape.

Guest Facilities with Cultural Sensitivity

On the left side of the site, respecting local traditions and values, a separate guest zone was established. This includes a Majlis positioned to overlook the sea, providing a scenic and welcoming space for social gatherings. Adjacent to the Majlis is a dining area for 20 guests, supported by dedicated cooking, service, and restroom facilities.

Connected but with an independent entrance, the Guesthouse includes two hotel-style rooms, offering comfort and privacy. Under this guest facility shell, a barbecue and shaded outdoor space was created - perfect for leisure and entertainment. A green roof above the structure helps regulate temperature and provides thermal insulation, enhancing the environmental sustainability of the project.

Climate-Responsive Landscape Design

The landscape strategy was developed with attention to Abu Dhabi’s arid climate, using durable, drought-tolerant plants to create a lush yet low-maintenance environment. The use of travertine stone on façades, wooden shading elements, and gravel flooring contribute to an organic yet modern aesthetic that complements the natural surroundings.

Shaded pedestrian walkways connect key areas of the site, ensuring comfort while moving between the parking area, main house, and beach. These walkways and planted zones also contribute to the microclimate, helping to cool the environment naturally.

Private Beach and Waterfront Features

Villa 22 is distinguished by its exclusive access to a private beach. A wooden deck runs parallel to the shoreline, functioning as both a walking path and sunbathing platform. A perpendicular deck connects the inland parts of the site directly to the sea, enabling multiple access points to the beach and enhancing the property’s luxury experience.